Top.Mail.Ru

Кунцевская ул., д. 10

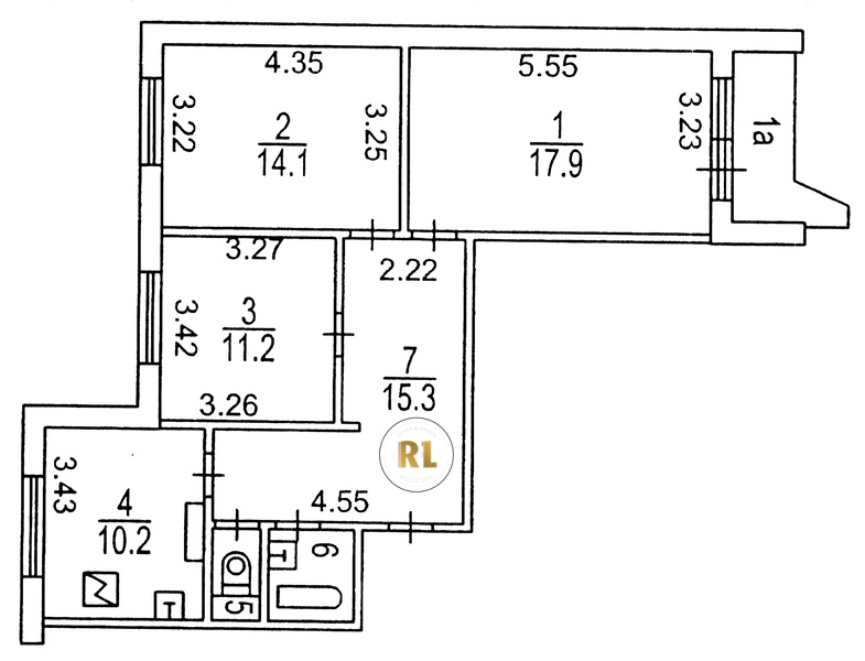
База каталог, Кол-во помещений: 0, Имеется, П-44, Москва, Кунцево, Площадь парковки: 0, Пассажирский лифт: 4, От метро: 1360, Западный, нет, Наименьшее кол-во этажей: 0, Наибольшее кол-во этажей: 17, Молодёжная, Кол-во подъездов: 4, Год ввода в эксплуатацию: 1984, Кол-во нежилых помещений: 0, 3-комн, Кол-во жилых помещений: 0, дом 10, нет, да, да, да, да, нет, Имеется, Грузовых лифтов: 0, Год постройки: 1984, Кунцевская улица, 37.412981, 55.731288
Свяжитесь со мной на счет цены
10 дн.
T55S731288L37S412981T

На карте


Условия сделки

Источник


Старт продаж

Возможно заинтересует