Top.Mail.Ru

Нижегородская ул., д. 80, к. 1

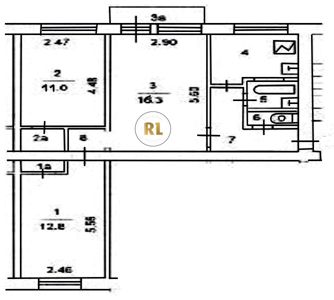
База каталог, Кол-во подъездов: 4, Отсутствует, I-511, Москва, Нижегородский, Площадь парковки: 0, Пассажирский лифт: 0, От метро: 860, Юго-Восточный, нет, Наименьшее кол-во этажей: 0, Наибольшее кол-во этажей: 5, Нижегородская, Кол-во помещений: 70, Кол-во нежилых помещений: 2, Год ввода в эксплуатацию: 1964, 3-комн, Кол-во жилых помещений: 68, Не присвоен, дом 80, корпус 1, нет, да, да, да, да, да, Имеется, Грузовых лифтов: 0, Год постройки: 1964, Нижегородская улица, 37.715920, 55.731647
Свяжитесь со мной на счет цены
10 дн.
T55S731647L37S715920T

На карте


Условия сделки

Источник


Старт продаж

Возможно заинтересует