Top.Mail.Ru

Нижегородская ул., д. 76, к. 2

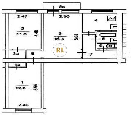
База каталог, Кол-во подъездов: 3, Отсутствует, I-511, Москва, Нижегородский, Площадь парковки: 1205, Пассажирский лифт: 0, От метро: 1090, Юго-Восточный, да, Наименьшее кол-во этажей: 0, Наибольшее кол-во этажей: 5, Нижегородская, Кол-во помещений: 62, Кол-во нежилых помещений: 2, Год ввода в эксплуатацию: 1965, 3-комн, Кол-во жилых помещений: 60, Не присвоен, дом 76, корпус 2, нет, да, да, да, да, да, Отсутствует, Грузовых лифтов: 0, Год постройки: 1965, Нижегородская улица, 37.713503, 55.731668
Свяжитесь со мной на счет цены
10 дн.
T55S731668L37S713503T

На карте


Условия сделки

Источник


Старт продаж

Возможно заинтересует