Top.Mail.Ru

Нижегородская ул., д. 71

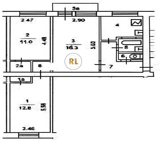
База каталог, Кол-во подъездов: 3, Отсутствует, I-511, Москва, Нижегородский, Площадь парковки: 70, Пассажирский лифт: 0, От метро: 490, Юго-Восточный, да, Наименьшее кол-во этажей: 0, Наибольшее кол-во этажей: 5, Нижегородская, Кол-во помещений: 62, Кол-во нежилых помещений: 2, Год ввода в эксплуатацию: 1960, 3-комн, Кол-во жилых помещений: 60, Не присвоен, дом 71, да, да, да, да, да, да, Отсутствует, Грузовых лифтов: 0, Год постройки: 1960, Нижегородская улица, 37.720645, 55.731698
Свяжитесь со мной на счет цены
10 дн.
T55S731698L37S720645T

На карте


Условия сделки

Источник


Старт продаж

Возможно заинтересует