Top.Mail.Ru

улица Герасима Курина, д. 14, к. 3

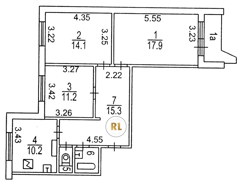
База каталог, Кол-во подъездов: 5, П-44, Москва, Фили-Давыдково, Пассажирский лифт: 5, От метро: 310, Западный, да, Наименьшее кол-во этажей: 14, Наибольшее кол-во этажей: 14, Славянский бульвар, Кол-во помещений: 112, Кол-во нежилых помещений: 1, Год ввода в эксплуатацию: 1995, 3-комн, Кол-во жилых помещений: 111, Не присвоен, дом 14, корпус 3, да, да, да, да, да, да, Грузовых лифтов: 5, Год постройки: 1995, улица Герасима Курина, 37.473950, 55.731886
Свяжитесь со мной на счет цены
10 дн.
T55S731886L37S473950T

На карте


Условия сделки

Источник


Старт продаж

Возможно заинтересует