Top.Mail.Ru

улица Герасима Курина, д. 14, к. 2

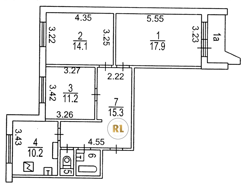
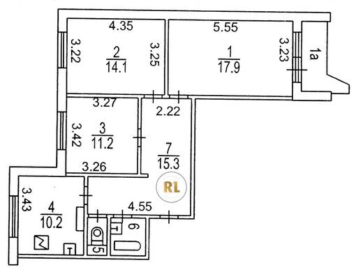
База каталог, Кол-во помещений: 407, П-44-1/17, Москва, Фили-Давыдково, Площадь парковки: 0, Пассажирский лифт: 6, От метро: 400, Западный, нет, Наименьшее кол-во этажей: 17, Наибольшее кол-во этажей: 17, Славянский бульвар, Кол-во подъездов: 6, Год ввода в эксплуатацию: 1995, Кол-во нежилых помещений: 1, 3-комн, Кол-во жилых помещений: 406, дом 14, корпус 2, да, да, да, да, да, да, Грузовых лифтов: 6, Год постройки: 1995, улица Герасима Курина, 37.475522, 55.731916
Свяжитесь со мной на счет цены
10 дн.
T55S731916L37S475522T

На карте


Условия сделки

Источник


Старт продаж

Возможно заинтересует