Top.Mail.Ru

аллея Жемчуговой, д. 5, к. 4

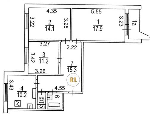
База каталог, Кол-во подъездов: 4, П-44, Москва, Вешняки, Площадь парковки: 2387, Пассажирский лифт: 4, От метро: 2420, Восточный, да, Наименьшее кол-во этажей: 17, Наибольшее кол-во этажей: 17, Выхино, Кол-во помещений: 259, Кол-во нежилых помещений: 1, Год ввода в эксплуатацию: 2000, 3-комн, Кол-во жилых помещений: 258, D, дом 5, корпус 4, нет, да, да, нет, нет, нет, Имеется, Грузовых лифтов: 4, Год постройки: 2000, аллея Жемчуговой, 37.825496, 55.732099
Свяжитесь со мной на счет цены
10 дн.
T55S732099L37S825496T

На карте


Условия сделки

Источник


Старт продаж

Возможно заинтересует