Top.Mail.Ru

Нижегородская ул., д. 68

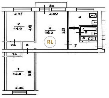
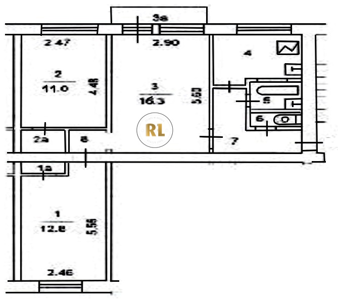
База каталог, Кол-во подъездов: 4, Отсутствует, I-511, Москва, Нижегородский, Площадь парковки: 0, Пассажирский лифт: 0, От метро: 1410, Юго-Восточный, нет, Наименьшее кол-во этажей: 0, Наибольшее кол-во этажей: 5, Нижегородская, Кол-во помещений: 80, Кол-во нежилых помещений: 0, Год ввода в эксплуатацию: 1962, 3-комн, Кол-во жилых помещений: 80, Не присвоен, дом 68, нет, да, да, да, да, нет, Отсутствует, Грузовых лифтов: 0, Год постройки: 1962, Нижегородская улица, 37.708221, 55.732494
Свяжитесь со мной на счет цены
10 дн.
T55S732494L37S708221T

На карте


Условия сделки

Источник


Старт продаж

Возможно заинтересует