Top.Mail.Ru

Вешняковская ул., д. 14, к. 2

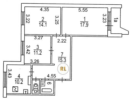
База каталог, Кол-во подъездов: 4, П-44, Москва, Вешняки, Площадь парковки: 0, Пассажирский лифт: 4, От метро: 2390, Восточный, нет, Наименьшее кол-во этажей: 17, Наибольшее кол-во этажей: 17, Выхино, Кол-во помещений: 259, Кол-во нежилых помещений: 0, Год ввода в эксплуатацию: 1989, 3-комн, Кол-во жилых помещений: 259, E, дом 14, корпус 2, нет, да, да, нет, нет, нет, Грузовых лифтов: 4, Год постройки: 1989, Вешняковская улица, 37.828551, 55.732590
Свяжитесь со мной на счет цены
10 дн.
T55S732590L37S828551T

На карте


Условия сделки

Источник


Старт продаж

Возможно заинтересует