Top.Mail.Ru

Стройковская ул., д. 19/2

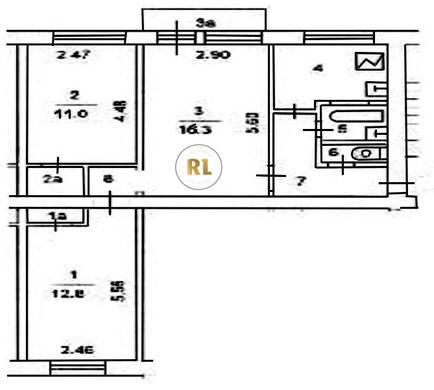
База каталог, Кол-во подъездов: 4, I-511, Москва, Таганский, Площадь парковки: 0, Пассажирский лифт: 0, От метро: 510, Центральный, нет, Наименьшее кол-во этажей: 1, Наибольшее кол-во этажей: 5, Пролетарская, Кол-во помещений: 80, Кол-во нежилых помещений: 0, Год ввода в эксплуатацию: 1961, 3-комн, Кол-во жилых помещений: 80, D, дом 19/2, да, да, да, да, да, да, Грузовых лифтов: 0, Год постройки: 1961, Стройковская улица, 37.673484, 55.732651
Свяжитесь со мной на счет цены
10 дн.
T55S732651L37S673484T

На карте


Условия сделки

Источник


Старт продаж

Возможно заинтересует