Top.Mail.Ru

Средняя Калитниковская ул., д. 51, к. 1

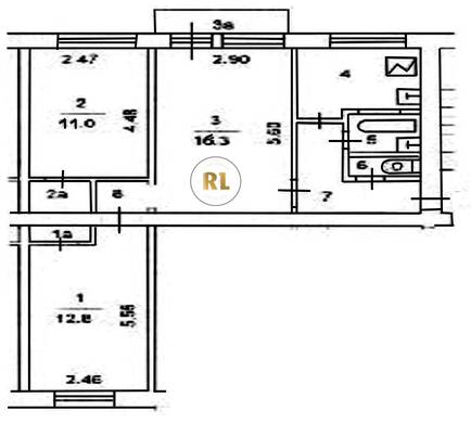
База каталог, Кол-во подъездов: 4, I-511, Москва, Нижегородский, Площадь парковки: 808, Пассажирский лифт: 0, От метро: 1650, Юго-Восточный, да, Наименьшее кол-во этажей: 0, Наибольшее кол-во этажей: 5, Волгоградский проспект, Кол-во помещений: 55, Кол-во нежилых помещений: 0, Год ввода в эксплуатацию: 1961, 3-комн, Кол-во жилых помещений: 55, дом 51, корпус 1, нет, да, да, да, нет, нет, Имеется, Грузовых лифтов: 0, Год постройки: 1961, Средняя Калитниковская улица, 37.700568, 55.733087
Свяжитесь со мной на счет цены
10 дн.
T55S733087L37S700568T

На карте


Условия сделки

Источник


Старт продаж

Возможно заинтересует