Top.Mail.Ru

Новокосинская ул., д. 9, к. 1

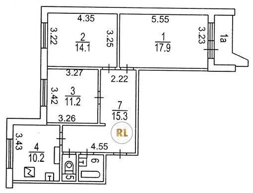
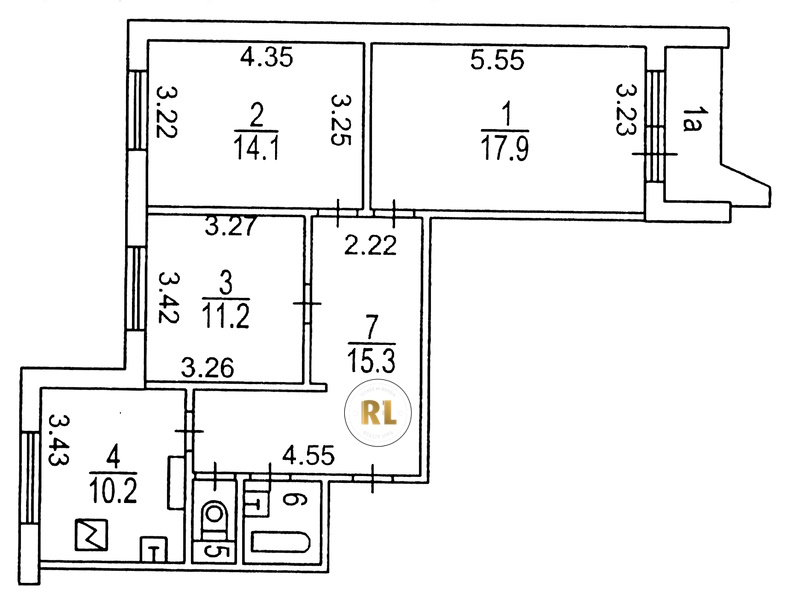
База каталог, Кол-во подъездов: 5, Имеется, П-44, Москва, Новокосино, Площадь парковки: 0, Пассажирский лифт: 5, От метро: 1460, Восточный, нет, Наименьшее кол-во этажей: 14, Наибольшее кол-во этажей: 14, Новокосино, Кол-во помещений: 277, Кол-во нежилых помещений: 9, Год ввода в эксплуатацию: 1996, 3-комн, Кол-во жилых помещений: 268, D, дом 9, корпус 1, нет, да, да, да, да, нет, Имеется, Грузовых лифтов: 5, Год постройки: 1996, Новокосинская улица, 37.854090, 55.733143
Свяжитесь со мной на счет цены
10 дн.
T55S733143L37S854090T

На карте


Условия сделки

Источник


Старт продаж

Возможно заинтересует