Top.Mail.Ru

улица Верхняя Хохловка, д. 31

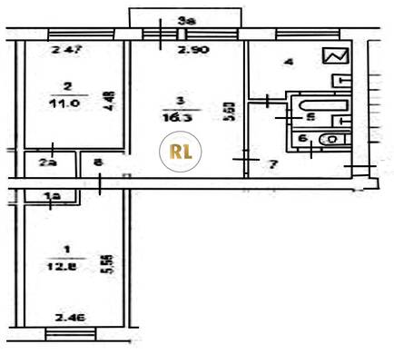
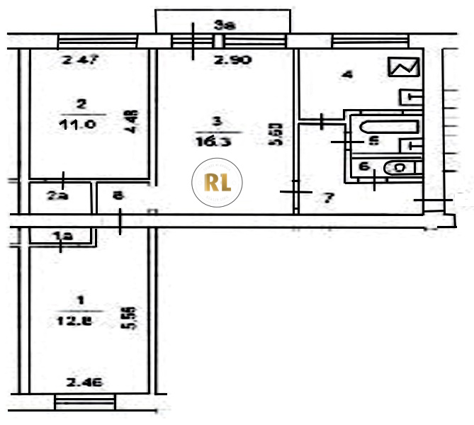
База каталог, Кол-во подъездов: 3, I-511, Москва, Нижегородский, Площадь парковки: 0, Пассажирский лифт: 0, От метро: 750, Юго-Восточный, нет, Наименьшее кол-во этажей: 0, Наибольшее кол-во этажей: 5, Нижегородская, Кол-во помещений: 60, Кол-во нежилых помещений: 0, Год ввода в эксплуатацию: 1961, 3-комн, Кол-во жилых помещений: 60, дом 31, нет, да, да, да, да, да, Имеется, Грузовых лифтов: 0, Год постройки: 1961, улица Верхняя Хохловка, 37.719154, 55.733290
Свяжитесь со мной на счет цены
10 дн.
T55S733290L37S719154T

На карте


Условия сделки

Источник


Старт продаж

Возможно заинтересует