Top.Mail.Ru

улица Герасима Курина, д. 4, к. 1

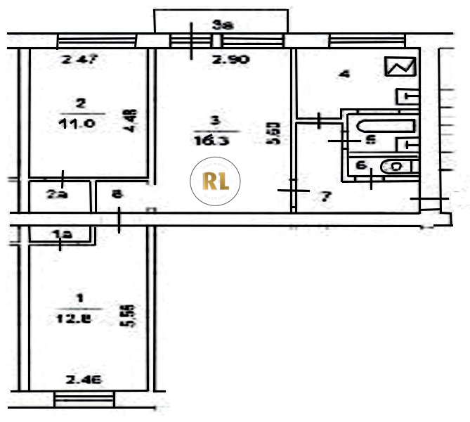
База каталог, Кол-во подъездов: 3, I-511, Москва, Фили-Давыдково, Площадь парковки: 0, Пассажирский лифт: 0, От метро: 820, Западный, нет, Наименьшее кол-во этажей: 1, Наибольшее кол-во этажей: 5, Филёвский парк, Кол-во помещений: 65, Кол-во нежилых помещений: 5, Год ввода в эксплуатацию: 1959, 3-комн, Кол-во жилых помещений: 60, А, дом 4, корпус 1, нет, да, да, да, да, да, Имеется, Грузовых лифтов: 0, Год постройки: 1959, улица Герасима Курина, 37.486302, 55.733361
Свяжитесь со мной на счет цены
10 дн.
T55S733361L37S486302T

На карте


Условия сделки

Источник


Старт продаж

Возможно заинтересует