Top.Mail.Ru

Новокосинская ул., д. 9, к. 2

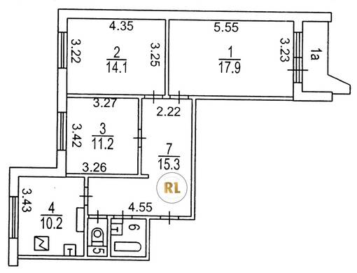
База каталог, Кол-во подъездов: 3, Имеется, П-44, Москва, Новокосино, Площадь парковки: 0, Пассажирский лифт: 3, От метро: 1530, Восточный, нет, Наименьшее кол-во этажей: 14, Наибольшее кол-во этажей: 14, Новокосино, Кол-во помещений: 157, Кол-во нежилых помещений: 1, Год ввода в эксплуатацию: 1998, 3-комн, Кол-во жилых помещений: 156, В+, дом 9, корпус 2, нет, да, да, да, да, нет, Имеется, Грузовых лифтов: 3, Год постройки: 1998, Новокосинская улица, 37.852904, 55.733553
Свяжитесь со мной на счет цены
10 дн.
T55S733553L37S852904T

На карте


Условия сделки

Источник


Старт продаж

Возможно заинтересует