Top.Mail.Ru

Новокосинская ул., д. 8, к. 2

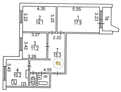
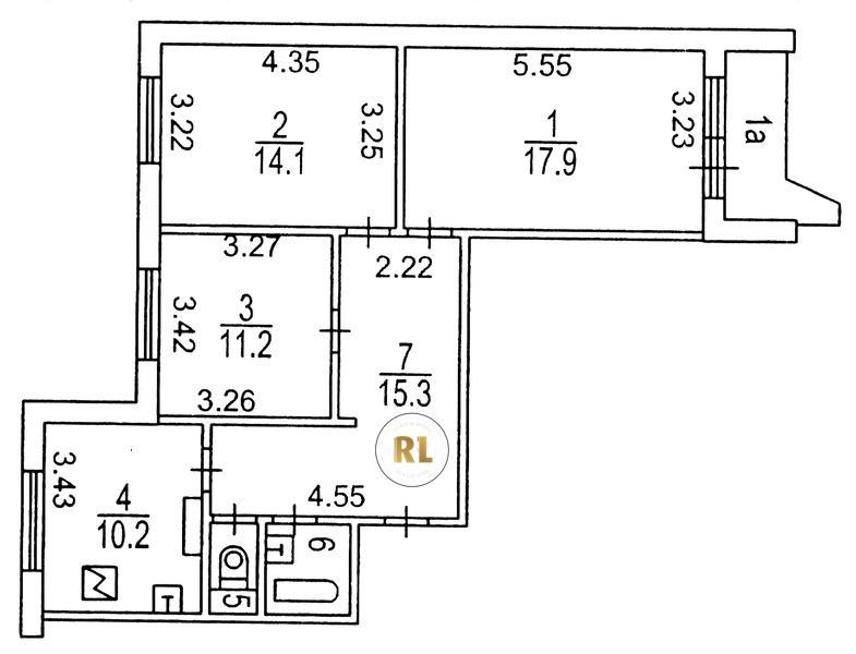
База каталог, Кол-во подъездов: 3, Имеется, П-44, Москва, Новокосино, Площадь парковки: 0, Пассажирский лифт: 3, От метро: 1480, Восточный, нет, Наименьшее кол-во этажей: 12, Наибольшее кол-во этажей: 12, Новокосино, Кол-во помещений: 138, Кол-во нежилых помещений: 6, Год ввода в эксплуатацию: 1997, 3-комн, Кол-во жилых помещений: 132, В, дом 8, корпус 2, нет, да, да, да, да, нет, Имеется, Грузовых лифтов: 3, Год постройки: 1997, Новокосинская улица, 37.856695, 55.733579
Свяжитесь со мной на счет цены
10 дн.
T55S733579L37S856695T

На карте


Условия сделки

Источник


Старт продаж

Возможно заинтересует