Top.Mail.Ru

Новокосинская ул., д. 11, к. 2

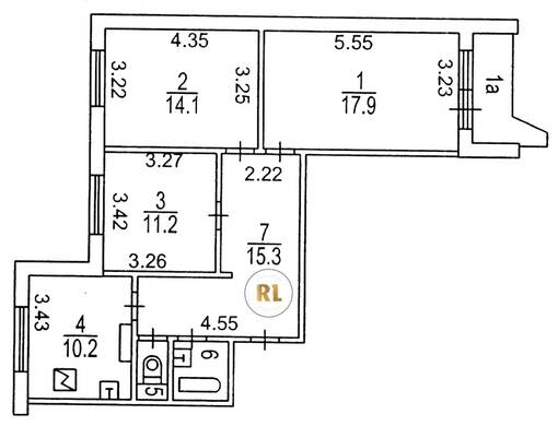
База каталог, Кол-во подъездов: 3, Имеется, П-44, Москва, Новокосино, Площадь парковки: 0, Пассажирский лифт: 3, От метро: 1370, Восточный, нет, Наименьшее кол-во этажей: 14, Наибольшее кол-во этажей: 14, Новокосино, Кол-во помещений: 161, Кол-во нежилых помещений: 5, Год ввода в эксплуатацию: 1998, 3-комн, Кол-во жилых помещений: 156, А, дом 11, корпус 2, нет, да, да, да, да, нет, Имеется, Грузовых лифтов: 3, Год постройки: 1998, Новокосинская улица, 37.852958, 55.734405
Свяжитесь со мной на счет цены
10 дн.
T55S734405L37S852958T

На карте


Условия сделки

Источник


Старт продаж

Возможно заинтересует