Top.Mail.Ru

Перовское шоссе, д. 6

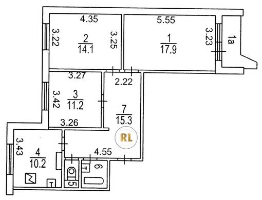
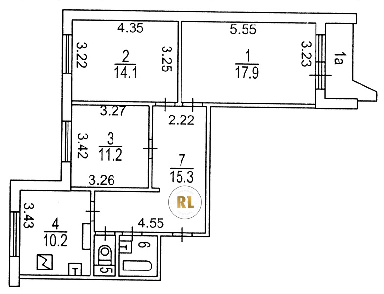
База каталог, Кол-во подъездов: 3, Отсутствует, П-44, Москва, Нижегородский, Площадь парковки: 0, Пассажирский лифт: 3, От метро: 970, Юго-Восточный, нет, Наименьшее кол-во этажей: 0, Наибольшее кол-во этажей: 17, Нижегородская, Кол-во помещений: 208, Кол-во нежилых помещений: 5, Год ввода в эксплуатацию: 2002, 3-комн, Кол-во жилых помещений: 203, Не присвоен, дом 6, нет, да, да, да, да, да, Отсутствует, Грузовых лифтов: 0, Год постройки: 2002, Перовское шоссе, 37.744504, 55.734653
Свяжитесь со мной на счет цены
10 дн.
T55S734653L37S744504T

На карте


Условия сделки

Источник


Старт продаж

Возможно заинтересует