Top.Mail.Ru

Новокосинская ул., д. 11, к. 1

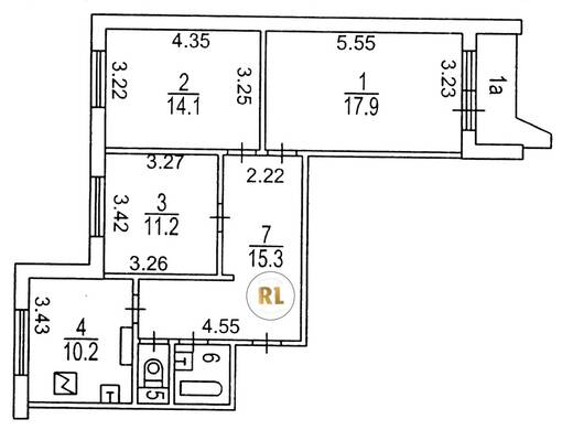
База каталог, Кол-во подъездов: 5, Имеется, П-44, Москва, Новокосино, Площадь парковки: 0, Пассажирский лифт: 5, От метро: 1280, Восточный, нет, Наименьшее кол-во этажей: 14, Наибольшее кол-во этажей: 14, Новокосино, Кол-во помещений: 275, Кол-во нежилых помещений: 7, Год ввода в эксплуатацию: 1997, 3-комн, Кол-во жилых помещений: 268, D, дом 11, корпус 1, нет, да, да, да, да, нет, Имеется, Грузовых лифтов: 5, Год постройки: 1997, Новокосинская улица, 37.854260, 55.734775
Свяжитесь со мной на счет цены
10 дн.
T55S734775L37S854260T

На карте


Условия сделки

Источник


Старт продаж

Возможно заинтересует