Top.Mail.Ru

Суздальская ул., д. 8, к. 4

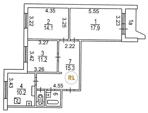
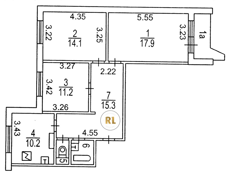
База каталог, Кол-во подъездов: 3, Имеется, П-44, Москва, Новокосино, Площадь парковки: 0, Пассажирский лифт: 3, От метро: 1470, Восточный, нет, Наименьшее кол-во этажей: 10, Наибольшее кол-во этажей: 10, Новокосино, Кол-во помещений: 121, Кол-во нежилых помещений: 1, Год ввода в эксплуатацию: 1996, 3-комн, Кол-во жилых помещений: 120, D, дом 8, корпус 4, нет, да, да, да, да, нет, Имеется, Грузовых лифтов: 3, Год постройки: 1996, Суздальская улица, 37.850748, 55.735089
17 500 000 Р
10 дн.
T55S735089L37S850748T
+

На карте


Условия сделки

Источник


Старт продаж