Top.Mail.Ru

Бобруйская ул., д. 4, к. 2

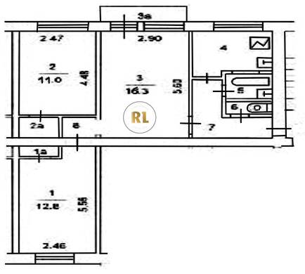
База каталог, Кол-во подъездов: 3, I-511, Москва, Кунцево, Площадь парковки: 84, Пассажирский лифт: 0, От метро: 1060, Западный, да, Наименьшее кол-во этажей: 5, Наибольшее кол-во этажей: 5, Молодёжная, Кол-во помещений: 60, Кол-во нежилых помещений: 0, Год ввода в эксплуатацию: 1965, 3-комн, Кол-во жилых помещений: 60, Не присвоен, дом 4, корпус 2, нет, да, да, да, да, да, Грузовых лифтов: 0, Год постройки: 1965, Бобруйская улица, 37.405570, 55.735900
Свяжитесь со мной на счет цены
10 дн.
T55S735900L37S405570T

На карте


Условия сделки

Источник


Старт продаж

Возможно заинтересует