Top.Mail.Ru

Минская ул., д. 7

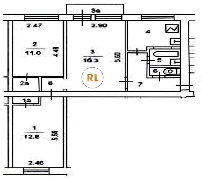
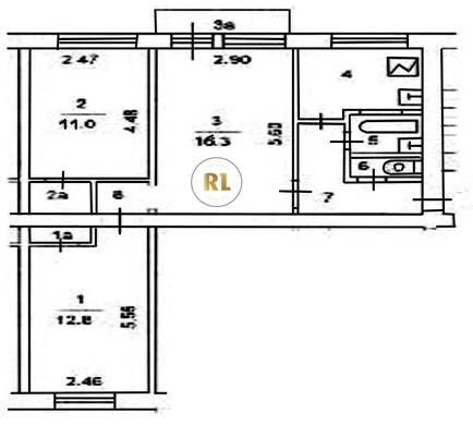
База каталог, Кол-во подъездов: 4, I-511, Москва, Фили-Давыдково, Площадь парковки: 0, Пассажирский лифт: 0, От метро: 470, Западный, нет, Наименьшее кол-во этажей: 1, Наибольшее кол-во этажей: 5, Филёвский парк, Кол-во помещений: 80, Кол-во нежилых помещений: 0, Год ввода в эксплуатацию: 1960, 3-комн, Кол-во жилых помещений: 80, А, дом 7, да, да, да, да, да, да, Грузовых лифтов: 0, Год постройки: 1960, Минская улица, 37.485475, 55.735971
Свяжитесь со мной на счет цены
10 дн.
T55S735971L37S485475T

На карте


Условия сделки

Источник


Старт продаж

Возможно заинтересует