Top.Mail.Ru

Салтыковская ул., д. 11, к. 2

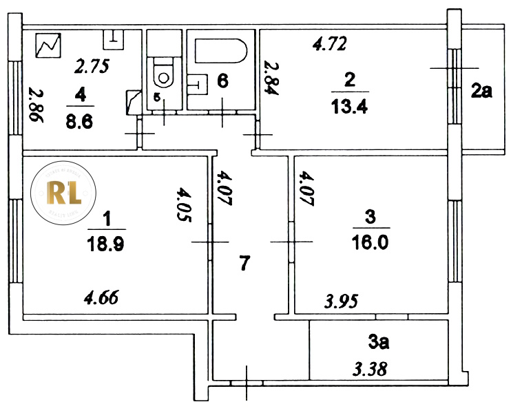
База каталог, Кол-во подъездов: 6, Имеется, П-46, Москва, Новокосино, Площадь парковки: 0, Пассажирский лифт: 6, От метро: 1250, Восточный, нет, Наименьшее кол-во этажей: 7, Наибольшее кол-во этажей: 7, Новокосино, Кол-во помещений: 114, Кол-во нежилых помещений: 1, Год ввода в эксплуатацию: 1997, 3-комн, Кол-во жилых помещений: 113, D, дом 11, корпус 2, нет, да, да, да, да, нет, Имеется, Грузовых лифтов: 0, Год постройки: 1997, Салтыковская улица, 37.861752, 55.736240
Свяжитесь со мной на счет цены
10 дн.
T55S736240L37S861752T

На карте


Условия сделки

Источник


Старт продаж

Возможно заинтересует