Top.Mail.Ru

Суздальская ул., д. 10, к. 4

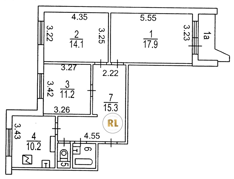
База каталог, Кол-во подъездов: 4, Имеется, П-44, Москва, Новокосино, Площадь парковки: 0, Пассажирский лифт: 4, От метро: 1360, Восточный, нет, Наименьшее кол-во этажей: 10, Наибольшее кол-во этажей: 10, Новокосино, Кол-во помещений: 160, Кол-во нежилых помещений: 1, Год ввода в эксплуатацию: 1996, 3-комн, Кол-во жилых помещений: 159, D, дом 10, корпус 4, нет, да, да, да, да, нет, Имеется, Грузовых лифтов: 4, Год постройки: 1996, Суздальская улица, 37.849868, 55.736306
Свяжитесь со мной на счет цены
10 дн.
T55S736306L37S849868T

На карте


Условия сделки

Источник


Старт продаж

Возможно заинтересует