Top.Mail.Ru

Новокосинская ул., д. 14, к. 6

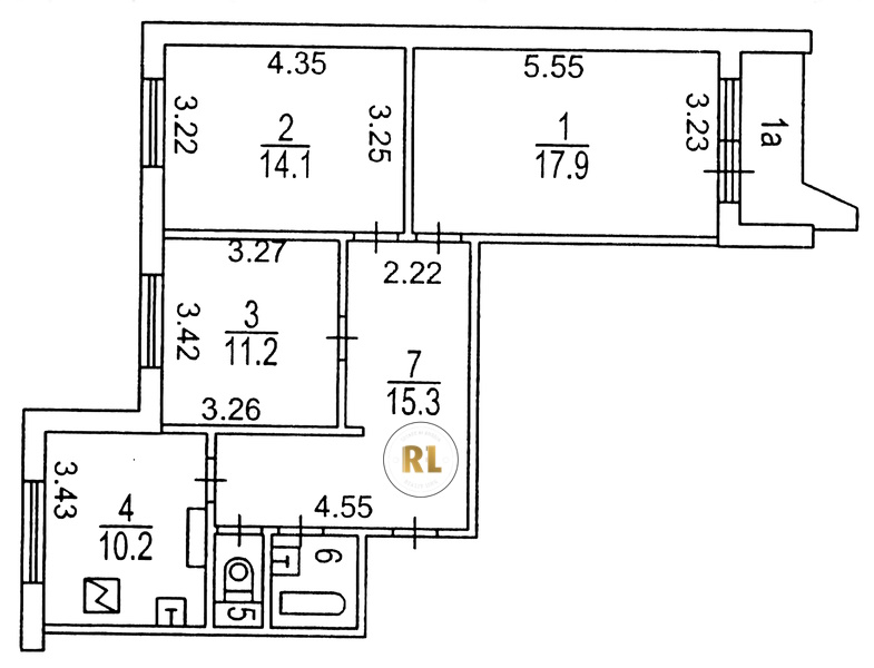
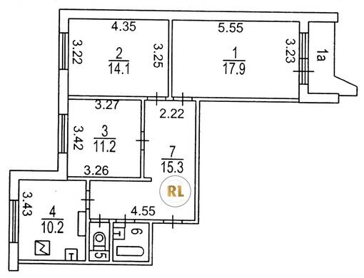
База каталог, Кол-во подъездов: 4, Имеется, П-44, Москва, Новокосино, Площадь парковки: 0, Пассажирский лифт: 4, От метро: 1140, Восточный, нет, Наименьшее кол-во этажей: 14, Наибольшее кол-во этажей: 14, Новокосино, Кол-во помещений: 225, Кол-во нежилых помещений: 1, Год ввода в эксплуатацию: 1996, 3-комн, Кол-во жилых помещений: 224, D, дом 14, корпус 6, нет, да, да, да, да, нет, Имеется, Грузовых лифтов: 4, Год постройки: 1996, Новокосинская улица, 37.859785, 55.736316
Свяжитесь со мной на счет цены
10 дн.
T55S736316L37S859785T

На карте


Условия сделки

Источник


Старт продаж

Возможно заинтересует