Top.Mail.Ru

Новокосинская ул., д. 12, к. 5

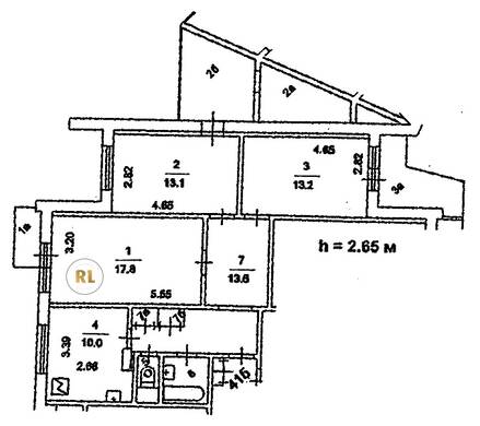
База каталог, Кол-во подъездов: 2, Имеется, П-3-2/16, Москва, Новокосино, Площадь парковки: 0, Пассажирский лифт: 2, От метро: 1120, Восточный, нет, Наименьшее кол-во этажей: 17, Наибольшее кол-во этажей: 17, Новокосино, Кол-во помещений: 137, Кол-во нежилых помещений: 1, Год ввода в эксплуатацию: 1997, 3-комн, Кол-во жилых помещений: 136, D, дом 12, корпус 5, нет, да, да, да, да, нет, Имеется, Грузовых лифтов: 2, Год постройки: 1997, Новокосинская улица, 37.857665, 55.736412
Свяжитесь со мной на счет цены
10 дн.
T55S736412L37S857665T

На карте


Условия сделки

Источник


Старт продаж

Возможно заинтересует