Top.Mail.Ru

1-я Карачаровская ул., д. 17

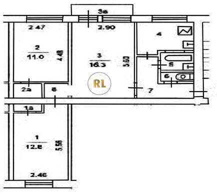
База каталог, Кол-во подъездов: 3, Отсутствует, I-511, Москва, Нижегородский, Площадь парковки: 0, Пассажирский лифт: 0, От метро: 1560, Юго-Восточный, нет, Наименьшее кол-во этажей: 0, Наибольшее кол-во этажей: 5, Стахановская, Кол-во помещений: 0, Кол-во нежилых помещений: 0, Год ввода в эксплуатацию: 1962, 3-комн, Кол-во жилых помещений: 0, Не присвоен, дом 17, нет, да, да, да, да, нет, Имеется, Грузовых лифтов: 0, Год постройки: 1962, 1-я Карачаровская улица, 37.758545, 55.736503
Свяжитесь со мной на счет цены
10 дн.
T55S736503L37S758545T

На карте


Условия сделки

Источник


Старт продаж

Возможно заинтересует