Top.Mail.Ru

Новокосинская ул., д. 13, к. 3

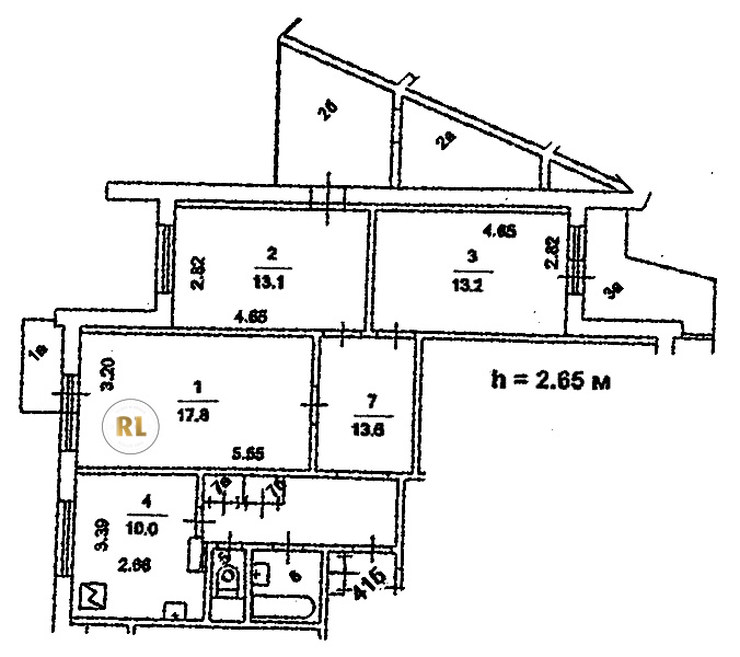
База каталог, Кол-во подъездов: 4, Имеется, П-3-2/16, Москва, Новокосино, Площадь парковки: 0, Пассажирский лифт: 4, От метро: 1150, Восточный, нет, Наименьшее кол-во этажей: 17, Наибольшее кол-во этажей: 17, Новокосино, Кол-во помещений: 261, Кол-во нежилых помещений: 5, Год ввода в эксплуатацию: 1998, 3-комн, Кол-во жилых помещений: 256, D, дом 13, корпус 3, нет, да, да, да, да, нет, Имеется, Грузовых лифтов: 4, Год постройки: 1998, Новокосинская улица, 37.852563, 55.737040
Свяжитесь со мной на счет цены
10 дн.
T55S737040L37S852563T

На карте


Условия сделки

Источник


Старт продаж

Возможно заинтересует