Top.Mail.Ru

Суздальская ул., д. 10, к. 3

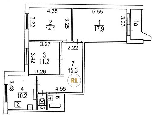
База каталог, Кол-во подъездов: 7, Имеется, П-44, Москва, Новокосино, Площадь парковки: 0, Пассажирский лифт: 7, От метро: 1280, Восточный, нет, Наименьшее кол-во этажей: 14, Наибольшее кол-во этажей: 14, Новокосино, Кол-во помещений: 384, Кол-во нежилых помещений: 12, Год ввода в эксплуатацию: 1996, 3-комн, Кол-во жилых помещений: 372, D, дом 10, корпус 3, нет, да, да, да, да, нет, Имеется, Грузовых лифтов: 7, Год постройки: 1996, Суздальская улица, 37.850020, 55.737172
Свяжитесь со мной на счет цены
10 дн.
T55S737172L37S850020T

На карте


Условия сделки

Источник


Старт продаж

Возможно заинтересует