Top.Mail.Ru

Бобруйская ул., д. 18, к. 1

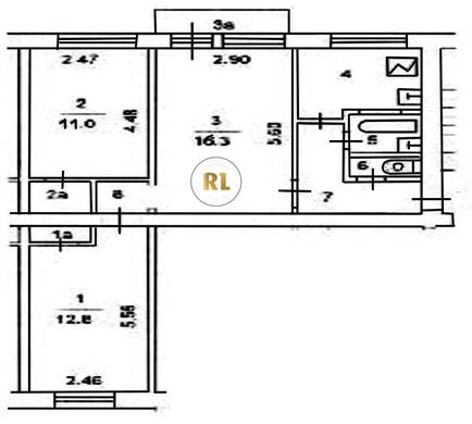
База каталог, Кол-во подъездов: 4, I-511, Москва, Кунцево, Площадь парковки: 20, Пассажирский лифт: 0, От метро: 1340, Западный, да, Наименьшее кол-во этажей: 5, Наибольшее кол-во этажей: 5, Молодёжная, Кол-во помещений: 160, Кол-во нежилых помещений: 0, Год ввода в эксплуатацию: 1964, 3-комн, Кол-во жилых помещений: 160, Не присвоен, дом 18, корпус 1, нет, да, да, да, да, нет, Отсутствует, Грузовых лифтов: 0, Год постройки: 1964, Бобруйская улица, 37.400665, 55.737380
Свяжитесь со мной на счет цены
10 дн.
T55S737380L37S400665T

На карте


Условия сделки

Источник


Старт продаж

Возможно заинтересует