Top.Mail.Ru

Реутовская ул., д. 12, к. 1

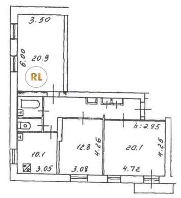
База каталог, Кол-во помещений: 358, II-05, Москва, Вешняки, Площадь парковки: 0, Пассажирский лифт: 10, От метро: 2450, Восточный, нет, Наименьшее кол-во этажей: 9, Наибольшее кол-во этажей: 9, Новогиреево, Кол-во подъездов: 10, Год ввода в эксплуатацию: 1971, Кол-во нежилых помещений: 0, 3-комн, Кол-во жилых помещений: 358, дом 12, корпус 1, нет, да, да, нет, нет, нет, Грузовых лифтов: 0, Год постройки: 1971, Реутовская улица, 37.834444, 55.737527
Свяжитесь со мной на счет цены
10 дн.
T55S737527L37S834444T

На карте


Условия сделки

Источник


Старт продаж

Возможно заинтересует