Top.Mail.Ru

Ярцевская ул., д. 14

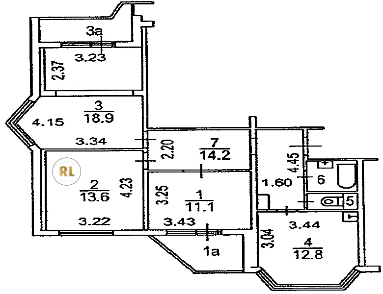
База каталог, Кол-во подъездов: 6, Отсутствует, П-44T, Москва, Кунцево, Площадь парковки: 0, Пассажирский лифт: 12, От метро: 550, Западный, нет, Наименьшее кол-во этажей: 0, Наибольшее кол-во этажей: 17, Молодёжная, Кол-во помещений: 391, Кол-во нежилых помещений: 2, Год ввода в эксплуатацию: 2012, 3-комн, Кол-во жилых помещений: 389, Не присвоен, дом 14, да, да, да, да, да, да, Отсутствует, Грузовых лифтов: 0, Год постройки: 2012, Ярцевская улица, 37.411921, 55.737568
Свяжитесь со мной на счет цены
10 дн.
T55S737568L37S411921T

На карте


Условия сделки

Источник


Старт продаж

Возможно заинтересует