Top.Mail.Ru

Новокосинская ул., д. 15, к. 2

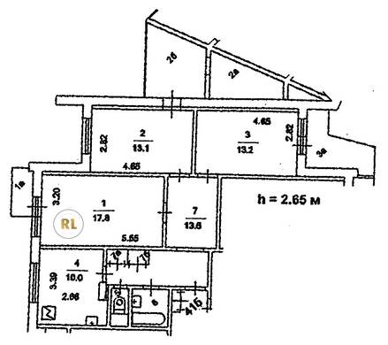
База каталог, Кол-во подъездов: 2, Имеется, П-3/17, Москва, Новокосино, Площадь парковки: 0, Пассажирский лифт: 2, От метро: 1060, Восточный, нет, Наименьшее кол-во этажей: 17, Наибольшее кол-во этажей: 17, Новокосино, Кол-во помещений: 130, Кол-во нежилых помещений: 2, Год ввода в эксплуатацию: 1997, 3-комн, Кол-во жилых помещений: 128, D, дом 15, корпус 2, нет, да, да, да, да, да, Имеется, Грузовых лифтов: 2, Год постройки: 1997, Новокосинская улица, 37.853021, 55.737755
Свяжитесь со мной на счет цены
10 дн.
T55S737755L37S853021T

На карте


Условия сделки

Источник


Старт продаж

Возможно заинтересует