Top.Mail.Ru

улица Василисы Кожиной, д. 8, к. 1

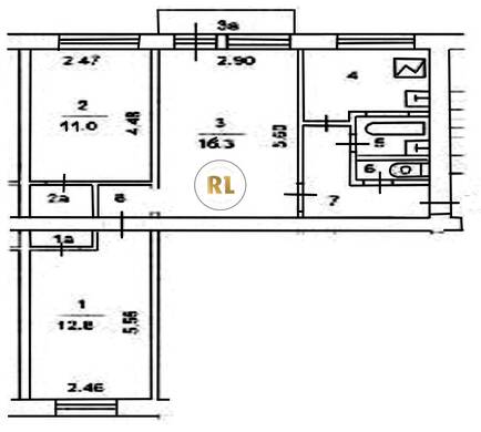
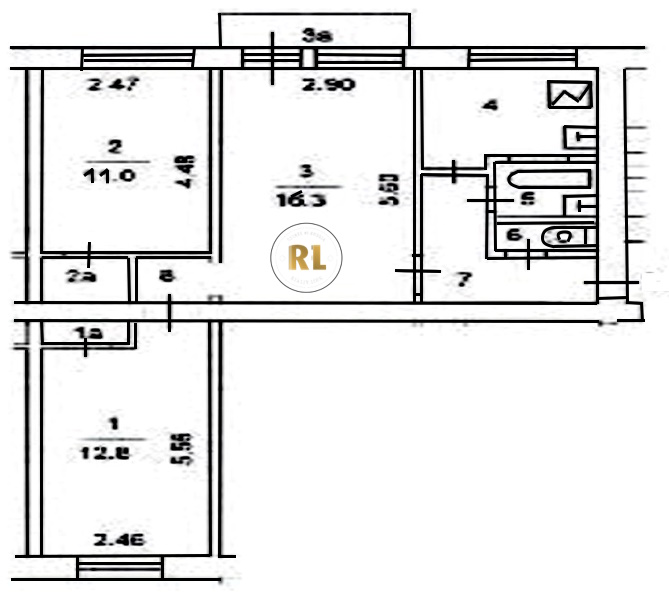
База каталог, Кол-во подъездов: 3, I-511, Москва, Филевский Парк, Площадь парковки: 0, Пассажирский лифт: 0, От метро: 850, Западный, нет, Наименьшее кол-во этажей: 5, Наибольшее кол-во этажей: 5, Багратионовская, Кол-во помещений: 60, Кол-во нежилых помещений: 0, Год ввода в эксплуатацию: 1961, 3-комн, Кол-во жилых помещений: 60, Не присвоен, дом 8, корпус 1, нет, да, да, да, да, да, Грузовых лифтов: 0, Год постройки: 1961, улица Василисы Кожиной, 37.501591, 55.737796
Свяжитесь со мной на счет цены
10 дн.
T55S737796L37S501591T

На карте


Условия сделки

Источник


Старт продаж

Возможно заинтересует