Top.Mail.Ru

Салтыковская ул., д. 15, к. 1

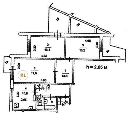
База каталог, Кол-во подъездов: 2, Имеется, П-3/17, Москва, Новокосино, Площадь парковки: 0, Пассажирский лифт: 2, От метро: 840, Восточный, нет, Наименьшее кол-во этажей: 17, Наибольшее кол-во этажей: 17, Новокосино, Кол-во помещений: 136, Кол-во нежилых помещений: 1, Год ввода в эксплуатацию: 1987, 3-комн, Кол-во жилых помещений: 135, D, дом 15, корпус 1, нет, да, да, да, да, да, Имеется, Грузовых лифтов: 2, Год постройки: 1987, Салтыковская улица, 37.864789, 55.737816
Свяжитесь со мной на счет цены
10 дн.
T55S737816L37S864789T

На карте


Условия сделки

Источник


Старт продаж

Возможно заинтересует