Top.Mail.Ru

Бобруйская ул., д. 20

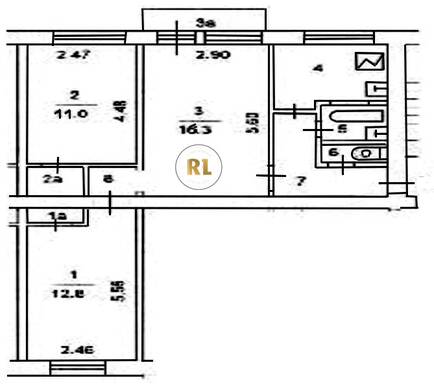
База каталог, Кол-во подъездов: 8, I-511, Москва, Кунцево, Площадь парковки: 0, Пассажирский лифт: 0, От метро: 1420, Западный, нет, Наименьшее кол-во этажей: 0, Наибольшее кол-во этажей: 5, Молодёжная, Кол-во помещений: 158, Кол-во нежилых помещений: 0, Год ввода в эксплуатацию: 1963, 3-комн, Кол-во жилых помещений: 158, Не присвоен, дом 20, нет, да, да, да, да, нет, Имеется, Грузовых лифтов: 0, Год постройки: 1963, Бобруйская улица, 37.400512, 55.737892
Свяжитесь со мной на счет цены
10 дн.
T55S737892L37S400512T

На карте


Условия сделки

Источник


Старт продаж

Возможно заинтересует