Top.Mail.Ru

Новокосинская ул., д. 14, к. 4

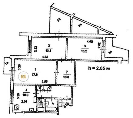
База каталог, Кол-во подъездов: 2, Имеется, П-3/17, Москва, Новокосино, Площадь парковки: 0, Пассажирский лифт: 2, От метро: 990, Восточный, нет, Наименьшее кол-во этажей: 17, Наибольшее кол-во этажей: 17, Новокосино, Кол-во помещений: 134, Кол-во нежилых помещений: 1, Год ввода в эксплуатацию: 1997, 3-комн, Кол-во жилых помещений: 133, D, дом 14, корпус 4, нет, да, да, да, да, да, Имеется, Грузовых лифтов: 2, Год постройки: 1997, Новокосинская улица, 37.859498, 55.737948
Свяжитесь со мной на счет цены
10 дн.
T55S737948L37S859498T

На карте


Условия сделки

Источник


Старт продаж

Возможно заинтересует