Top.Mail.Ru

Бобруйская ул., д. 24

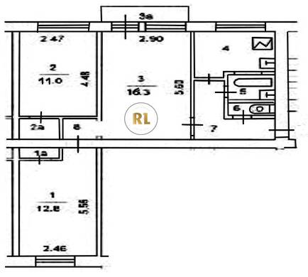
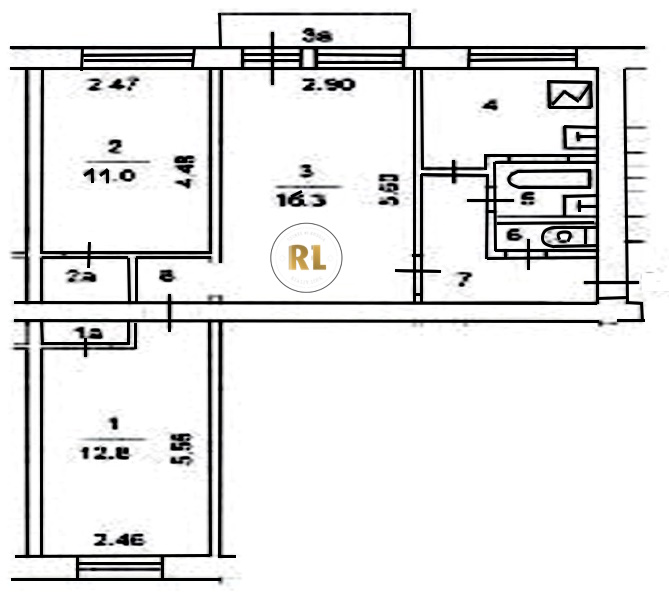
База каталог, Кол-во подъездов: 4, I-511, Москва, Кунцево, Площадь парковки: 101, Пассажирский лифт: 0, От метро: 1560, Западный, да, Наименьшее кол-во этажей: 5, Наибольшее кол-во этажей: 5, Молодёжная, Кол-во помещений: 80, Кол-во нежилых помещений: 0, Год ввода в эксплуатацию: 1964, 3-комн, Кол-во жилых помещений: 80, Не присвоен, дом 24, нет, да, да, да, да, нет, Грузовых лифтов: 0, Год постройки: 1964, Бобруйская улица, 37.398860, 55.738252
Свяжитесь со мной на счет цены
10 дн.
T55S738252L37S398860T

На карте


Условия сделки

Источник


Старт продаж

Возможно заинтересует