Top.Mail.Ru

Новокосинская ул., д. 20, к. 4

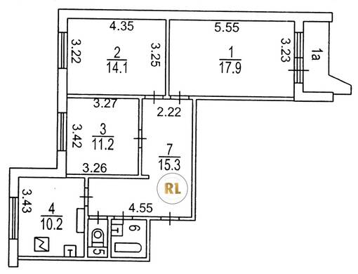
База каталог, Кол-во подъездов: 3, Имеется, П-44, Москва, Новокосино, Площадь парковки: 0, Пассажирский лифт: 3, От метро: 820, Восточный, нет, Наименьшее кол-во этажей: 12, Наибольшее кол-во этажей: 12, Новокосино, Кол-во помещений: 143, Кол-во нежилых помещений: 1, Год ввода в эксплуатацию: 1996, 3-комн, Кол-во жилых помещений: 142, E, дом 20, корпус 4, нет, да, да, да, да, да, Имеется, Грузовых лифтов: 3, Год постройки: 1996, Новокосинская улица, 37.861806, 55.738282
Свяжитесь со мной на счет цены
10 дн.
T55S738282L37S861806T

На карте


Условия сделки

Источник


Старт продаж

Возможно заинтересует