Top.Mail.Ru

улица Рогожский Поселок, д. 1

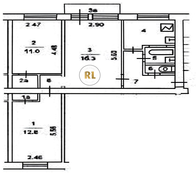
База каталог, Кол-во подъездов: 4, I-511, Москва, Нижегородский, Пассажирский лифт: 0, От метро: 2080, Юго-Восточный, да, Наименьшее кол-во этажей: 0, Наибольшее кол-во этажей: 5, Нижегородская, Кол-во помещений: 80, Кол-во нежилых помещений: 0, Год ввода в эксплуатацию: 1969, 3-комн, Кол-во жилых помещений: 80, дом 1, нет, да, да, да, нет, нет, Грузовых лифтов: 0, Год постройки: 1969, улица Рогожский Поселок, 37.700523, 55.738495
Свяжитесь со мной на счет цены
10 дн.
T55S738495L37S700523T

На карте


Условия сделки

Источник


Старт продаж

Возможно заинтересует