Top.Mail.Ru

Новокосинская ул., д. 20, к. 2

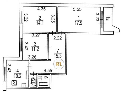
База каталог, Кол-во подъездов: 4, Имеется, П-44-1/17, Москва, Новокосино, Площадь парковки: 0, Пассажирский лифт: 4, От метро: 780, Восточный, нет, Наименьшее кол-во этажей: 17, Наибольшее кол-во этажей: 17, Новокосино, Кол-во помещений: 274, Кол-во нежилых помещений: 3, Год ввода в эксплуатацию: 1996, 3-комн, Кол-во жилых помещений: 271, D, дом 20, корпус 2, нет, да, да, да, да, да, Имеется, Грузовых лифтов: 4, Год постройки: 1995, Новокосинская улица, 37.860836, 55.738748
Свяжитесь со мной на счет цены
10 дн.
T55S738748L37S860836T

На карте


Условия сделки

Источник


Старт продаж

Возможно заинтересует