Top.Mail.Ru

Суздальская ул., д. 12, к. 2

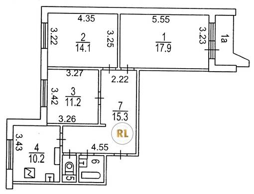
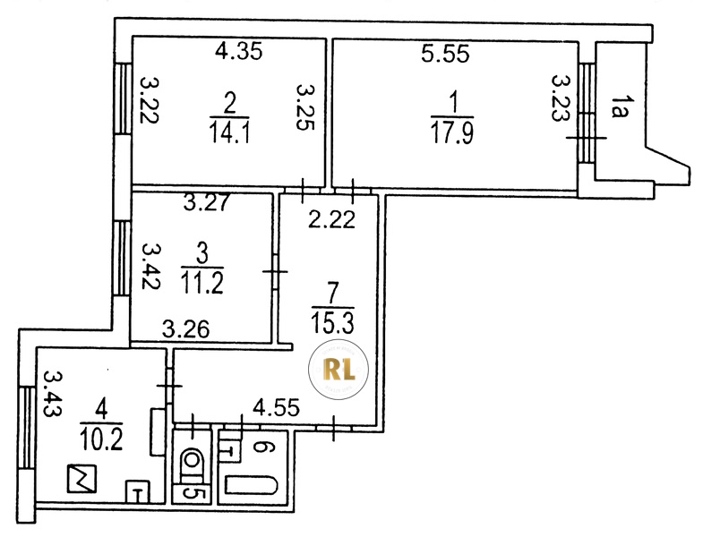
База каталог, Кол-во подъездов: 2, Имеется, П-44, Москва, Новокосино, Площадь парковки: 0, Пассажирский лифт: 2, От метро: 1200, Восточный, нет, Наименьшее кол-во этажей: 14, Наибольшее кол-во этажей: 14, Новокосино, Кол-во помещений: 113, Кол-во нежилых помещений: 1, Год ввода в эксплуатацию: 1995, 3-комн, Кол-во жилых помещений: 112, D, дом 12, корпус 2, нет, да, да, да, да, нет, Имеется, Грузовых лифтов: 2, Год постройки: 1995, Суздальская улица, 37.848394, 55.738799
Свяжитесь со мной на счет цены
10 дн.
T55S738799L37S848394T

На карте


Условия сделки

Источник


Старт продаж

Возможно заинтересует