Top.Mail.Ru

Суздальская ул., д. 12, к. 1

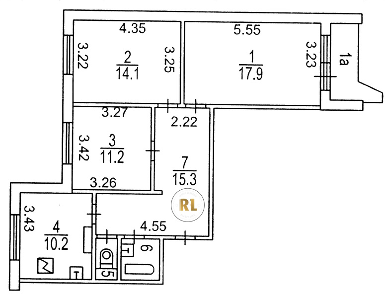
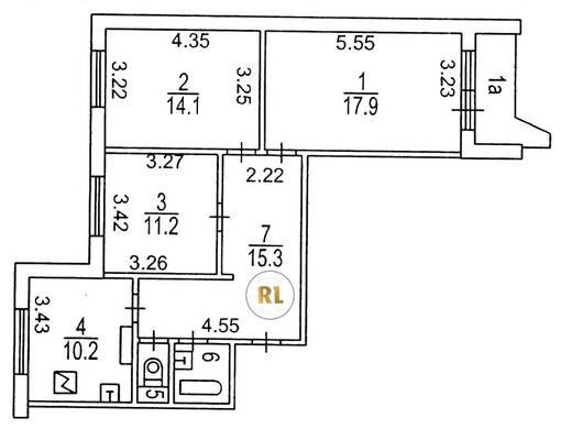
База каталог, Кол-во подъездов: 2, Имеется, П-44-1/17, Москва, Новокосино, Площадь парковки: 0, Пассажирский лифт: 2, От метро: 1190, Восточный, нет, Наименьшее кол-во этажей: 17, Наибольшее кол-во этажей: 17, Новокосино, Кол-во помещений: 130, Кол-во нежилых помещений: 2, Год ввода в эксплуатацию: 1991, 3-комн, Кол-во жилых помещений: 128, В, дом 12, корпус 1, нет, да, да, да, да, нет, Имеется, Грузовых лифтов: 2, Год постройки: 1991, Суздальская улица, 37.847316, 55.738900
Свяжитесь со мной на счет цены
10 дн.
T55S738900L37S847316T

На карте


Условия сделки

Источник


Старт продаж

Возможно заинтересует