Top.Mail.Ru

Малая Филевская ул., д. 12, к. 3

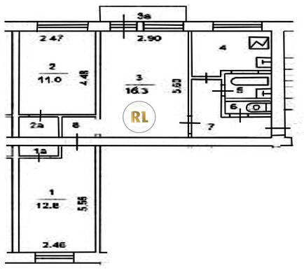
База каталог, Кол-во подъездов: 4, I-511, Москва, Фили-Давыдково, Площадь парковки: 0, Пассажирский лифт: 0, От метро: 640, Западный, нет, Наименьшее кол-во этажей: 1, Наибольшее кол-во этажей: 5, Пионерская, Кол-во помещений: 80, Кол-во нежилых помещений: 0, Год ввода в эксплуатацию: 1972, 3-комн, Кол-во жилых помещений: 80, А, дом 12, корпус 3, нет, да, да, да, да, да, Имеется, Грузовых лифтов: 0, Год постройки: 1972, Малая Филевская улица, 37.472521, 55.738982
Свяжитесь со мной на счет цены
10 дн.
T55S738982L37S472521T

На карте


Условия сделки

Источник


Старт продаж

Возможно заинтересует