Top.Mail.Ru

Новокосинская ул., д. 17, к. 2

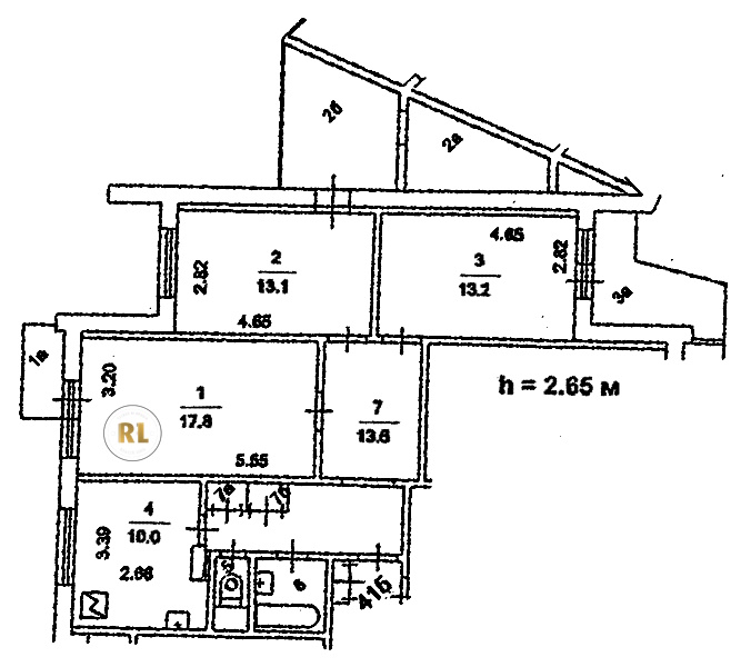
База каталог, Кол-во подъездов: 2, Имеется, П-3/17, Москва, Новокосино, Площадь парковки: 0, Пассажирский лифт: 2, От метро: 830, Восточный, нет, Наименьшее кол-во этажей: 17, Наибольшее кол-во этажей: 17, Новокосино, Кол-во помещений: 136, Кол-во нежилых помещений: 1, Год ввода в эксплуатацию: 1996, 3-комн, Кол-во жилых помещений: 135, E, дом 17, корпус 2, нет, да, да, да, да, да, Имеется, Грузовых лифтов: 2, Год постройки: 1996, Новокосинская улица, 37.855752, 55.739047
Свяжитесь со мной на счет цены
10 дн.
T55S739047L37S855752T

На карте


Условия сделки

Источник


Старт продаж

Возможно заинтересует