Top.Mail.Ru

Новокосинская ул., д. 17, к. 3

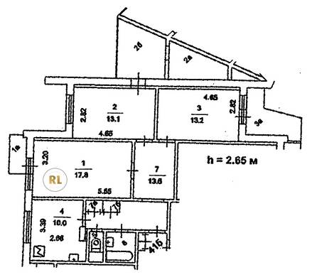
База каталог, Кол-во подъездов: 2, Имеется, П-3/17, Москва, Новокосино, Площадь парковки: 0, Пассажирский лифт: 2, От метро: 750, Восточный, нет, Наименьшее кол-во этажей: 17, Наибольшее кол-во этажей: 17, Новокосино, Кол-во помещений: 131, Кол-во нежилых помещений: 3, Год ввода в эксплуатацию: 1996, 3-комн, Кол-во жилых помещений: 128, D, дом 17, корпус 3, нет, да, да, да, да, да, Имеется, Грузовых лифтов: 2, Год постройки: 1996, Новокосинская улица, 37.856560, 55.739199
Свяжитесь со мной на счет цены
10 дн.
T55S739199L37S856560T

На карте


Условия сделки

Источник


Старт продаж

Возможно заинтересует