Top.Mail.Ru

Бобруйская ул., д. 26, к. 2

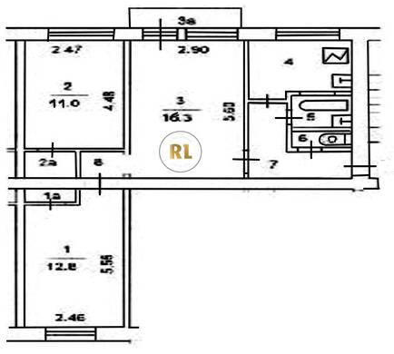
База каталог, Кол-во подъездов: 4, I-511, Москва, Кунцево, Площадь парковки: 233, Пассажирский лифт: 0, От метро: 1450, Западный, да, Наименьшее кол-во этажей: 5, Наибольшее кол-во этажей: 5, Молодёжная, Кол-во помещений: 80, Кол-во нежилых помещений: 0, Год ввода в эксплуатацию: 1965, 3-комн, Кол-во жилых помещений: 80, Не присвоен, дом 26, корпус 2, нет, да, да, да, да, нет, Грузовых лифтов: 0, Год постройки: 1965, Бобруйская улица, 37.399614, 55.739205
15 000 000 Р
10 дн.
T55S739205L37S399614T
+

На карте


Условия сделки

Источник


Старт продаж

Возможно заинтересует