Top.Mail.Ru

Ярцевская ул., д. 28

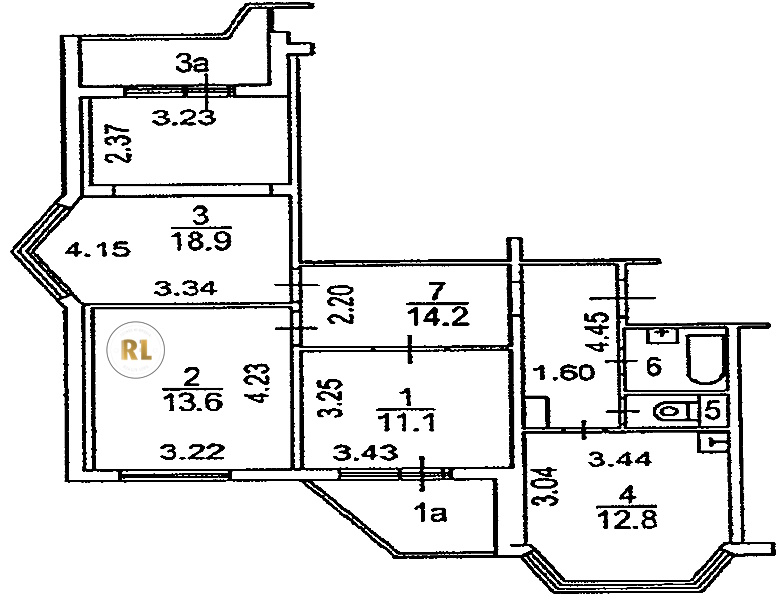
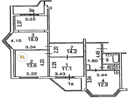
База каталог, Кол-во подъездов: 3, Имеется, П-44T, Москва, Кунцево, Площадь парковки: 401, Пассажирский лифт: 3, От метро: 249, Западный, да, Наименьшее кол-во этажей: 1, Наибольшее кол-во этажей: 17, Молодёжная, Кол-во помещений: 195, Кол-во нежилых помещений: 3, Год ввода в эксплуатацию: 2009, 3-комн, Кол-во жилых помещений: 192, Не присвоен, дом 28, да, да, да, да, да, да, Имеется, Грузовых лифтов: 3, Год постройки: 2009, Ярцевская улица, 37.415999, 55.739235
Свяжитесь со мной на счет цены
10 дн.
T55S739235L37S415999T

На карте


Условия сделки

Источник


Старт продаж

Возможно заинтересует