Top.Mail.Ru

Бобруйская ул., д. 32

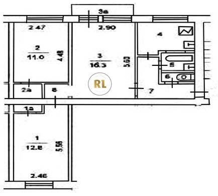
База каталог, Кол-во подъездов: 4, Имеется, I-511, Москва, Кунцево, Площадь парковки: 282, Пассажирский лифт: 0, От метро: 1710, Западный, да, Наименьшее кол-во этажей: 5, Наибольшее кол-во этажей: 5, Молодёжная, Кол-во помещений: 80, Кол-во нежилых помещений: 0, Год ввода в эксплуатацию: 1964, 3-комн, Кол-во жилых помещений: 80, Не присвоен, дом 32, нет, да, да, да, нет, нет, Имеется, Грузовых лифтов: 0, Год постройки: 1964, Бобруйская улица, 37.396506, 55.739377
Свяжитесь со мной на счет цены
10 дн.
T55S739377L37S396506T

На карте


Условия сделки

Источник


Старт продаж

Возможно заинтересует