Top.Mail.Ru

улица Плеханова, д. 28, к. 5

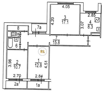
База каталог, Кол-во подъездов: 2, П-55, Москва, Перово, Пассажирский лифт: 4, От метро: 1960, Восточный, да, Наименьшее кол-во этажей: 9, Наибольшее кол-во этажей: 9, Перово, Кол-во помещений: 51, Кол-во нежилых помещений: 3, Год ввода в эксплуатацию: 1983, 3-комн, Кол-во жилых помещений: 48, дом 28, корпус 5, нет, да, да, да, нет, нет, Грузовых лифтов: 0, Год постройки: 1983, улица Плеханова, 37.768085, 55.739580
Свяжитесь со мной на счет цены
10 дн.
T55S739580L37S768085T

На карте


Условия сделки

Источник


Старт продаж

Возможно заинтересует